-
Hizmet Kategorileri
AlışverişDijital Ve KurumsalEğitimEğlenceGayrimenkulGiyim / TekstilHukuk ve MuhasebeKonaklamaMarkalarOrganizasyonOto / VasıtaResmi KurumlarSağlıkSporTamirat-TadilatYeme-İçme
- Blog
- Hakkımızda
- İller
- İletişim
- Markalar
- Giriş Yap
- Kayıt ol
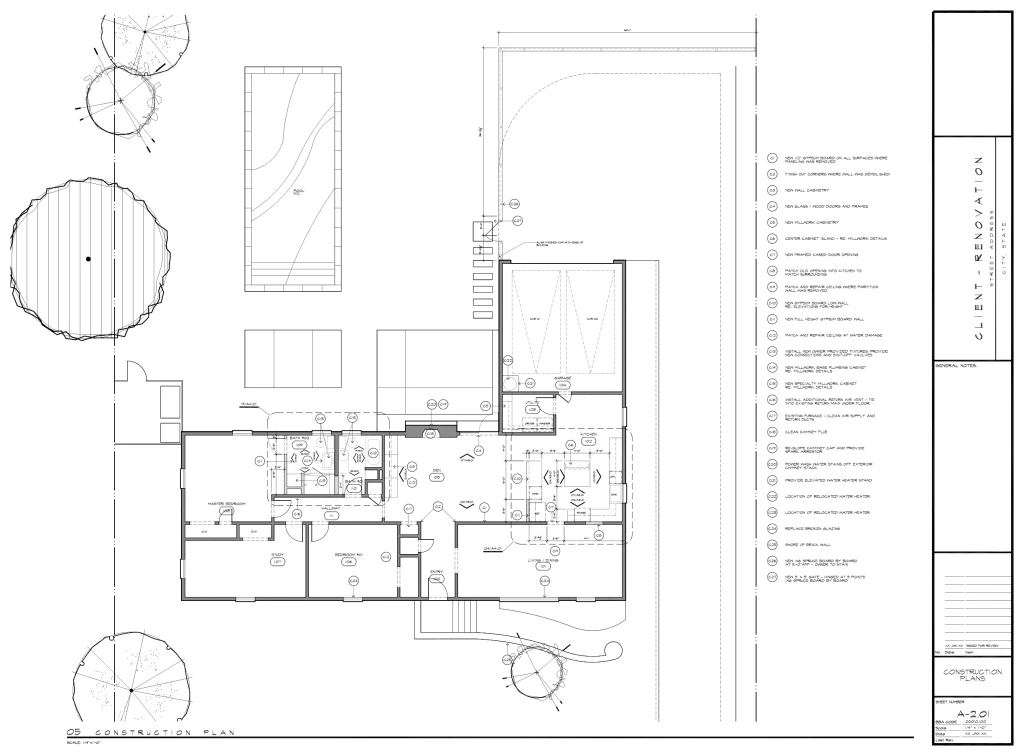
Karaman Mimarlık / Teknik Çizim
Karaman Mimarlık / Teknik Çizim
Karaman'da faaliyet gösteren mimarlar için hazırladığımız bu rehberde, başarılı bir mimarlık çizimi sürecinin püf noktalarına değineceğiz. Bir yapının hayata geçirilmesinde kritik bir rol oynayan detaylı teknik çizim, sadece birer taslak değil, aynı zamanda teknik projelerin de temelini oluşturur. Bu yazıda, inşaat planları oluşturmaktan, etkili bir mimarlık tasarım süreci yönetimine kadar pek çok konuya değineceğiz. Amacımız, Karamanlı mimarlarımızın iş süreçlerini kolaylaştırmak ve projelerinde başarıya ulaşmalarına katkıda bulunmaktır.
Teknik Çizim Nedir ve Neden Önemlidir?
Peki, teknik çizim tam olarak nedir ve neden Karaman gibi bir bölgedeki mimarlar için bu kadar kritiktir? Basitçe ifade etmek gerekirse, teknik çizim, bir yapının veya ürünün kesin ölçülerini, malzemelerini ve yapım yöntemlerini gösteren detaylı ve hassas bir görsel temsilidir. Bir mimarlık tasarımının hayata geçirilmesindeki ilk ve en önemli adımlardan biridir.
- Detaylı Teknik Çizim: İnşaat planları oluşturulurken kullanılan bu çizimler, projenin hatasız ve güvenli bir şekilde tamamlanmasını sağlar.
- Mimari Çizim: Sadece estetik kaygıları değil, aynı zamanda fonksiyonellik ve uygulanabilirlik ilkelerini de yansıtır.
- Teknik Proje : Bir nevi kılavuz görevi görerek, tüm paydaşların aynı dili konuşmasını mümkün kılar.
Dolayısıyla, mimarlık çizimi, sadece bir resimden çok daha fazlasıdır; bir teknik proje için yol haritasıdır ve mimari çi alanındaki başarının anahtarlarından biridir. Doğru ve eksiksiz bir teknik çizim sayesinde, olası hataların ve gecikmelerin önüne geçilir, maliyetler düşürülür ve en önemlisi, güvenli ve kullanışlı yapılar inşa edilir.

Karaman Bölgesinde Teknik Çizim Hizmetleri Nasıl Seçilir?
Karaman'da bir mimarlık tasarım ofisi açmak veya mevcut projelerinizi geliştirmek istiyorsanız, doğru teknik proje ortağını seçmek kritik öneme sahiptir. Peki, bu seçim sürecinde nelere dikkat etmelisiniz? İşte size rehber niteliğinde bazı ipuçları:
- Deneyim ve Uzmanlık: Öncelikle, firmanın geçmiş projelerini inceleyin. Daha önce benzer projelerde çalışmış olmaları, detaylı teknik çizim konusundaki tecrübelerini gösterir.
- Referanslar: Firmanın referanslarını kontrol edin. Müşteri geri bildirimleri, firmanın hizmet kalitesi hakkında önemli bilgiler sunabilir.
- Teknolojik Altyapı: Güncel yazılımlar ve teknolojik donanımlar, mimari çi kalitesini doğrudan etkiler. Firma, mimarlık çizimi için en son teknolojileri kullanıyor mu? Mutlaka öğrenin.
- İletişim ve İş Birliği: İyi bir iletişim, başarılı bir projenin anahtarıdır. Firma, sizinle düzenli olarak iletişim kuruyor ve geri bildirimlerinizi dikkate alıyor mu?
- Fiyatlandırma: Şeffaf bir fiyatlandırma politikası, bütçe planlaması açısından önemlidir. İnşaat planları için fiyat teklifi alırken, tüm detayları kapsadığına emin olun. Ayrıca, farklı firmaların fiyatlarını karşılaştırarak en uygun seçeneği belirleyebilirsiniz. Ancak unutmayın, en ucuz seçenek her zaman en iyi seçenek olmayabilir. Kalite ve deneyimi de göz önünde bulundurun.
Sonuç olarak, Karaman'daki teknik proje ortağınızı seçerken dikkatli olmak, projelerinizin başarısı için atacağınız en önemli adımlardan biridir.
Mimarlık Teknik Çizim Aşamaları Nelerdir?
Mimarlıkta teknik proje oluşturma süreci, bir yapının hayata geçirilmesinde kritik bir rol oynar. Bu süreç, genellikle bir dizi aşamadan oluşur ve her bir aşama, projenin başarısı için büyük önem taşır. İlk olarak, mimari çi etüt aşaması gelir. Bu aşamada, arazinin incelenmesi, çevresel faktörlerin değerlendirilmesi ve genel konseptin oluşturulması gibi adımlar atılır.
Ardından, ön proje aşamasına geçilir. Burada, mimarlık tasarım fikirleri daha somut hale getirilir ve ilk inşaat planları oluşturulmaya başlanır. Bu aşamada, yapının genel yerleşimi, kat planları ve cephe görünümleri belirlenir. Bir sonraki aşama ise, kesin projedir. Kesin projede, ön projede belirlenen detaylar daha da geliştirilir ve detaylı teknik çizim çalışmaları yapılır. Bu aşama, mimarlık çizimi için kritik bir öneme sahiptir, çünkü yapının tüm teknik özellikleri, ölçüleri ve malzemeleri bu aşamada belirlenir.
Son olarak, uygulama projesi aşamasına geçilir. Uygulama projesi, inşaatın temelini oluşturur ve ustaların inşaat planları oluştururken kullanacakları en detaylı teknik çizim setini içerir. Dolayısıyla mimari projelerde, her bir aşama özenle tamamlanmalı ve tüm detaylar doğru bir şekilde mimari çi üzerine aktarılmalıdır.
Doğru Teknik Çizim İçin Bilinmesi Gerekenler
Elbette, kusursuz bir mimarlık çizimi oluşturmak için bazı temel bilgilere sahip olmak şart. İlk olarak, ölçeklendirme konusunda titiz davranmalısınız. Projenizin doğru ve anlaşılır olması, ölçeklerin hatasız uygulanmasıyla doğrudan ilişkili. Ayrıca, inşaat planları oluştururken kullanılan sembollerin ve kısaltmaların ne anlama geldiğini tam olarak bilmelisiniz. Aksi takdirde, projenizde iletişim sorunları yaşanabilir.
Bununla birlikte, detaylı teknik çizim hazırlarken malzeme bilgisini de göz ardı etmeyin. Hangi malzemenin nerede kullanılacağını doğru bir şekilde belirtmek, uygulamanın sorunsuz ilerlemesini sağlar. Aynı zamanda, mimarlık tasarım sürecinde, farklı çizim tekniklerini (örneğin, perspektif, kesit, plan) amacınıza uygun olarak kullanabilmeniz gerekir. Son olarak, projelerinizi dijital ortama aktarırken güncel yazılımlara hakim olmak ve teknik proje oluşturma standartlarına uymak da büyük önem taşır. Unutmayın, mimari çizim sadece bir çizim değil, aynı zamanda bir iletişim aracıdır.
İşinizi Kolaylaştıracak Teknik Çizim Tavsiyeleri
Mimari çiziminizi geliştirmenin ve süreci hızlandırmanın yolları var mı? Kesinlikle! Özellikle Karaman'da faaliyet gösteren mimarlar için, doğru teknikler ve araçlar büyük fark yaratır. İlk olarak, her zaman güncel inşaat planları kullanmaya özen gösterin. Değişen yönetmelikler ve standartlar, teknik projenizin doğruluğunu doğrudan etkiler.
- Düzenli olarak referans aldığınız kaynakları güncelleyin.
- Detaylı teknik çizim yaparken, karmaşık detaylarda 3D modelleme yazılımlarından faydalanın. Bu, hataları en aza indirmenize yardımcı olur.
- Ekip çalışması yapıyorsanız, tüm ekibin aynı standartları ve sembolleri kullandığından emin olun. Ortak bir dil, iletişimi kolaylaştırır ve yanlış anlaşılmaları önler.
- Mimarlık tasarımı sürecinde, farklı varyasyonları hızlıca değerlendirmek için dijital araçları etkin kullanın.
- Son olarak, mimarlık çizimi konusunda sürekli kendinizi geliştirin. Yeni yazılımları ve teknikleri öğrenmek, verimliliğinizi artıracaktır. Ayrıca, uzmanlardan geri bildirim almaktan çekinmeyin.
Mimarlıkta Teknik Çizim Fiyatları ve Bütçe Planlaması
Mimarlık çizimi ve teknik proje hazırlama süreçlerinde maliyetleri anlamak, bütçe planlaması açısından kritik önem taşır. İnşaat planları, detaylı teknik çizim gereksinimleri ve mimari çizimin karmaşıklığı, fiyatlandırmayı doğrudan etkiler. Bu nedenle, bir mimarlık tasarım projesine başlamadan önce fiyat araştırması yapmak ve farklı hizmet sağlayıcılarından teklif almak akıllıca olacaktır.
Peki, nelere dikkat etmeliyiz? Öncelikle, teknik proje kapsamının net bir şekilde belirlenmesi önemlidir. Örneğin, sadece temel mimari çizimler mi gerekiyor, yoksa detaylı detaylı teknik çizimler, 3D modellemeler veya farklı uzmanlık alanlarını içeren danışmanlık hizmetleri de dahil mi? İkincisi, hizmet sağlayıcının deneyimi ve referansları dikkate alınmalıdır. Daha deneyimli ve uzman ekipler genellikle daha yüksek fiyatlarla çalışır, ancak kaliteli bir mimarlık çizimi elde etmek de önemlidir.
Bütçe planlaması yaparken aşağıdaki faktörleri göz önünde bulundurmalısınız:
- Projenin büyüklüğü ve karmaşıklığı
- Çizimlerin detay seviyesi
- Kullanılacak yazılım ve teknolojiler
- Ek hizmetler (örneğin, ruhsatlandırma danışmanlığı)
Son olarak, farklı firmalardan fiyat teklifi alarak karşılaştırma yapmak ve şeffaf bir sözleşme imzalamak, bütçenizi aşmanızı önleyecektir.
Sıkça Sorulan Sorular
Teknik çizim nedir ve Karaman'daki mimarlar için neden önemlidir?
Teknik çizim, bir yapının veya ürünün belirli standartlara göre detaylı ve ölçülü bir şekilde görsel olarak ifade edilmesidir. Karaman'daki mimarlar için teknik çizim, projelerin doğru bir şekilde tasarlanması, uygulanması ve iletişiminin sağlanması açısından hayati öneme sahiptir. Bu çizimler, bir yapının planlarını, kesitlerini, görünüşlerini ve detaylarını içerir. Doğru ve eksiksiz teknik çizimler, inşaat sürecinde hataları en aza indirir, maliyetleri düşürür ve projenin başarılı bir şekilde tamamlanmasına yardımcı olur. Aynı zamanda, müşterilere ve diğer paydaşlara projenin nasıl görüneceği konusunda net bir fikir verir.
Karaman'da teknik çizim yaparken nelere dikkat etmek gerekir?
Karaman'da teknik çizim yaparken, öncelikle yerel inşaat yönetmeliklerine ve standartlarına uygunluğu sağlamak önemlidir. Bu, çizimlerin yerel yapı denetim kuruluşları tarafından onaylanmasını kolaylaştırır. Ayrıca, Karaman'ın iklim koşullarını ve coğrafi özelliklerini dikkate alarak, yapının dayanıklılığını ve sürdürülebilirliğini artıracak detaylara odaklanmak gerekmektedir. Örneğin, güneşlenme açısı, rüzgar yönü ve yerel malzeme kullanımı gibi faktörler çizimlerde belirtilmelidir. Detaylı ve anlaşılır ölçeklendirme, doğru malzeme spesifikasyonları ve net açıklamalar da çizimlerin kalitesini artırır.
Teknik çizimlerde kullanılan temel araçlar ve yazılımlar nelerdir?
Teknik çizimlerde kullanılan temel araçlar arasında çizim masaları, çeşitli ölçeklerde cetveller, gönyeler, pergel, kalemler ve silgiler yer alır. Ancak günümüzde, bilgisayar destekli tasarım (CAD) yazılımları yaygın olarak kullanılmaktadır. AutoCAD, Revit, ArchiCAD ve SketchUp gibi yazılımlar, mimarların daha hızlı, doğru ve detaylı çizimler yapmasına olanak tanır. Bu yazılımlar, 3D modelleme, otomatik ölçülendirme, katman yönetimi ve farklı dosya formatlarında çıktı alma gibi özellikler sunar. Ayrıca, BIM (Yapı Bilgi Modellemesi) yazılımları, projelerin tüm yaşam döngüsü boyunca yönetilmesine yardımcı olur.
Teknik çizim hataları nasıl önlenir ve düzeltilir?
Teknik çizim hatalarını önlemenin en iyi yolu, çizim sürecinde dikkatli ve titiz olmaktır. Çizimleri yapmadan önce projenin gereksinimlerini ve standartlarını tam olarak anlamak, hataları en aza indirir. Çizimleri düzenli olarak kontrol etmek, ölçeklendirme ve ölçülendirme hatalarını tespit etmeye yardımcı olur. Ayrıca, farklı disiplinlerden uzmanlarla işbirliği yaparak, çizimlerin tutarlılığını ve doğruluğunu sağlamak önemlidir. Hata tespit edildiğinde, çizimi dikkatlice inceleyerek hatanın kaynağını bulmak ve uygun düzeltmeleri yapmak gerekir. CAD yazılımları, hata düzeltme ve revizyon süreçlerini kolaylaştırır.