-
Hizmet Kategorileri
AlışverişDijital Ve KurumsalEğitimEğlenceGayrimenkulGiyim / TekstilHukuk ve MuhasebeKonaklamaMarkalarOrganizasyonOto / VasıtaResmi KurumlarSağlıkSporTamirat-TadilatYeme-İçme
- Blog
- Hakkımızda
- İller
- İletişim
- Markalar
- Giriş Yap
- Kayıt ol
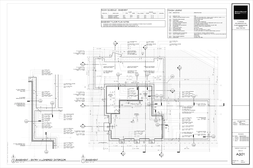
Çanakkale Mimarlık / Teknik Çizim
Çanakkale Mimarlık / Teknik Çizim
Çanakkale'de hayata geçirilecek mimarlık projeleri için doğru ve detaylı mimarlık teknik çizim aşaması, projenin başarısı için kritik bir öneme sahip. Bu rehberde, yapı çizim teknikleri hakkında temel bilgileri sunarken, inşaat çizimleri sürecinde dikkat edilmesi gerekenleri ve tasarım çizimleri için en iyi programları ele alacağız. Çanakkale özelinde mimari projelerinizi hayata geçirirken teknik çizimlerin püf noktalarını keşfedin.
Mimarlık Teknik Çizim Nedir? Temel Bilgiler
Mimarlık teknik çizim, bir yapının veya mekanın tasarımını, boyutlarını, malzemelerini ve diğer teknik özelliklerini detaylı bir şekilde gösteren çizimlerdir. Bu çizimler, mimarlık projelerinin hayata geçirilmesinde kritik bir rol oynar. Aynı zamanda, inşaat çizimlerinin doğru bir şekilde anlaşılmasını ve uygulanmasını sağlar. Dolayısıyla, mimarlık teknik çizim sadece estetik bir sunum değil, aynı zamanda yapım sürecinin de temelini oluşturur.
Peki, mimarlık teknik çizim neden bu kadar önemli? Çünkü bu çizimler:
- İletişimi Kolaylaştırır: Müşteriler, mühendisler ve diğer paydaşlar arasında ortak bir dil oluşturur.
- Doğru Uygulamayı Sağlar: İnşaat sürecinde hatasız ve doğru bir uygulama için gereklidir.
- Maliyet Kontrolüne Yardımcı Olur: Projenin maliyetini önceden belirlemeye ve kontrol etmeye yardımcı olur.
- Yasal Zorunlulukları Karşılar: Yapı ruhsatı gibi yasal süreçlerde sunulması zorunlu belgelerdir.
Özetle, yapı çizim teknikleri ve tasarım çizimleri konusunda uzmanlaşmak, başarılı mimarlık projeleri için vazgeçilmezdir ve Çanakkale'deki mimarlar için de büyük önem taşır. Bu nedenle, teknik çizimin temel prensiplerini iyi anlamak gerekir.

Çanakkale'de Mimarlık Teknik Çizim Hizmetlerinin Önemi
Çanakkale'de hayata geçirilmek istenen mimarlık projeleri için doğru ve güvenilir mimarlık teknik çizim inşaat çizimleri, bir projenin hayata geçirilmesindeki en kritik adımlardan biridir. Bu çizimler, sadece estetik kaygıları değil, aynı zamanda yapı çizim teknik standartlarını, güvenlik önlemlerini ve işlevselliği de yansıtmalıdır.hizmetleri almak büyük önem taşır. Çünkü
Peki, Çanakkale özelinde bu hizmetlerin önemi nedir?
- Yerel Yönetmeliklere Uyum: Çanakkale'nin kendine özgü imar yönetmelikleri ve yapı standartları bulunur. Profesyonel mimarlık teknik çizim hizmeti sayesinde, projeleriniz bu yönetmeliklere tam olarak uyum sağlar.
- Doğru ve Detaylı Planlama:Tasarım çizimleri, projenin her aşamasının doğru ve detaylı bir şekilde planlanmasını sağlar. Bu sayede olası hataların önüne geçilir ve maliyetler kontrol altında tutulur.
- Etkili İletişim: Net ve anlaşılır inşaat çizimleri, müteahhitler, mühendisler ve diğer paydaşlar arasındaki iletişimi kolaylaştırır. Bu da projenin daha hızlı ve sorunsuz ilerlemesine yardımcı olur. Sonuç olarak, doğru mimarlık teknik çizim hizmeti, projelerinizin başarısı için vazgeçilmezdir.
Teknik Çizim Sürecinde Dikkat Edilmesi Gerekenler
Teknik çizim süreci, mimarlık projeleri için hayati öneme sahiptir. Bu süreci sorunsuz ilerletmek için dikkat etmeniz gereken bazı önemli noktalar bulunmaktadır. Öncelikle, her zaman projenin gereksinimlerini tam olarak anlamak esastır. Projenin amacı, hedef kitlesi ve yasal düzenlemeler gibi faktörler, inşaat çizimleri ve diğer tasarım çizimleri üzerinde doğrudan etkili olacaktır.
- Doğru ekipman ve yazılım seçimi: Kaliteli çizimler için uygun çizim masaları, kalemler ve en önemlisi güncel mimarlık teknik çizim programları kullanmak önemlidir.
- Ölçek ve oranlara dikkat: Çizimlerin doğru ölçekte ve orantılı olması, projenin uygulanabilirliği açısından kritiktir. Bu, yapı çizim teknik bilgilerini doğru uygulamayı gerektirir.
- Açıklık ve anlaşılırlık: Çizimlerin net, okunaklı ve kolay anlaşılır olması gerekir. Gerekli tüm detaylar belirtilmeli ve karmaşıklıktan kaçınılmalıdır.
- Standartlara uygunluk: Çizimlerin ilgili standartlara ve yönetmeliklere uygun olarak hazırlanması önemlidir.
Son olarak, proje sürecinde düzenli olarak kontroller yapmak ve olası hataları erken tespit etmek, zaman ve maliyet tasarrufu sağlar. Unutmayın, doğru ve eksiksiz bir mimarlık teknik çizim, başarılı bir projenin temelini oluşturur. Bu nedenle, her aşamada titizlikle çalışmak önemlidir.
En İyi Teknik Çizim Programları ve Kullanım İpuçları
Günümüzde, mimarlık teknik çizim alanında birçok farklı program mevcuttur. İyi bir program seçimi, mimarlık projeleri hazırlarken verimliliği artırır ve inşaat çizimleri kalitesini yükseltir. Peki, hangi programlar öne çıkıyor ve bunları kullanırken nelere dikkat etmeliyiz?
Öncelikle, AutoCAD, endüstri standardı haline gelmiş güçlü bir seçenektir. Detaylı tasarım çizimleri oluşturmak için geniş araç yelpazesi sunar. Ancak, öğrenme eğrisi biraz dik olabilir. Diğer yandan, SketchUp, kullanıcı dostu arayüzü sayesinde hızlı prototipler ve 3D modellemeler için idealdir.
Ayrıca, Revit, özellikle BIM (Yapı Bilgi Modellemesi) süreçleri için tasarlanmıştır. Yapı çizim teknik açısından gelişmiş özelliklere sahiptir ve proje yönetimini kolaylaştırır.
İşte bazı popüler programlar ve temel kullanım ipuçları:
- AutoCAD: Kısayol tuşlarını öğrenin ve özelleştirilmiş araç çubukları oluşturun.
- SketchUp: Eklentileri kullanarak iş akışınızı hızlandırın. Katmanları etkin bir şekilde kullanarak modelinizi düzenli tutun.
- Revit: Aileleri (families) doğru yapılandırın ve proje şablonlarını özelleştirin.
Sonuç olarak, program seçimi projenizin gereksinimlerine ve kişisel tercihlerinize bağlıdır. Önemli olan, seçtiğiniz programı etkin bir şekilde kullanabilmek için düzenli olarak pratik yapmaktır. Doğru araçlarla, mimarlık teknik çizim süreçlerinizi optimize edebilir ve başarılı projelere imza atabilirsiniz.
Proje Çizimlerinde Doğru Ölçek ve Detaylar
Mimarlık projeleri hayata geçirilirken en kritik adımlardan biri, şüphesiz ki doğru ölçek ve detaylandırma ile hazırlanan inşaat çizimleridir. Ölçek, çizimde temsil edilen nesnenin gerçek boyutlarıyla olan oranını ifade eder. Yanlış ölçek seçimi, projenin uygulanabilirliğini doğrudan etkileyebilir. Örneğin, 1:100 ölçeği genel yerleşim planları için uygunken, 1:20 gibi daha büyük ölçekler detay çizimler için tercih edilir. Bu sayede, mimarlık teknik çizim aşamasında tüm detaylar açık ve anlaşılır şekilde gösterilebilir.
Detaylandırma ise, tasarım çizimlerinin okunabilirliğini ve uygulanabilirliğini artırır. Duvar kalınlıkları, malzeme özellikleri, bağlantı detayları gibi unsurların doğru ve eksiksiz bir şekilde belirtilmesi, inşaat sürecinde karşılaşılabilecek sorunları en aza indirir. Unutmamak gerekir ki, yapı çizim tekniklerindeki ustalık, projenin başarısına giden yolda önemli bir etkendir. Dolayısıyla, hem ölçek seçimine hem de detaylandırmaya azami özen gösterilmelidir.
Mimarlık Teknik Çizimlerinde Sık Yapılan Hatalar ve Çözüm Önerileri
Mimarlık teknik çizim süreçlerinde, özellikle inşaat çizimleri ve mimarlık projeleri aşamasında, dikkat edilmediği takdirde çeşitli hatalar meydana gelebilir. Bu hatalar, projenin uygulanabilirliğini doğrudan etkileyebilir ve zaman, maliyet kayıplarına yol açabilir. Peki, bu hatalar nelerdir ve nasıl önlenir?
İlk olarak, ölçeklendirme hataları oldukça yaygındır. Çizimlerde kullanılan ölçeğin doğru bir şekilde belirtilmemesi veya çizim elemanlarının bu ölçeğe uygun çizilmemesi, sahada büyük sorunlara yol açabilir. Çözüm olarak, çizimlerinizi kontrol ederken ölçekleri dikkatlice gözden geçirin ve farklı ölçeklerdeki detayları ayrı ayrı inceleyin.
İkinci olarak, detaylandırma eksiklikleri de sıkça karşılaşılan bir problemdir. Özellikle yapı çizim teknik bilgisi yetersiz olan kişiler tarafından hazırlanan tasarım çizimleri, gerekli detayları içermeyebilir. Bu nedenle, detay çizimlerine yeterli zaman ayırın ve farklı disiplinlerden uzmanların görüşlerini alarak çizimlerinizi zenginleştirin.
Üçüncü olarak, malzeme ve ölçü bilgilerinin eksik veya yanlış girilmesi, uygulamada ciddi sıkıntılara neden olabilir. Bunun önüne geçmek için, malzeme listelerini ve ölçü tablolarını titizlikle hazırlayın ve çizimlerinizle tutarlılığını sağlayın.
Son olarak, Çanakkale'deki mimarlık teknik çizim hizmetlerinde de karşılaşılan en büyük sorunlardan biri, güncel yönetmeliklere uyumsuzluktur. Unutmayın ki, projelerinizi hazırlarken güncel yönetmelikleri takip etmek ve çizimlerinizi bu doğrultuda oluşturmak yasal zorunluluktur.
Sıkça Sorulan Sorular
Mimari teknik çizimlerde en sık karşılaşılan zorluklar nelerdir?
Mimari teknik çizimlerde karşılaşılan en büyük zorluklardan biri, farklı ölçeklerdeki detayları doğru ve anlaşılır bir şekilde ifade etmektir. Özellikle karmaşık yapı elemanlarının, detaylı kesitlerin ve bağlantı noktalarının çizimi, tecrübe ve dikkat gerektirir. Ayrıca, güncel yapı yönetmeliklerine ve standartlarına hakim olmak, çizimlerin doğru ve uygulanabilir olmasını sağlamak açısından kritik öneme sahiptir. Malzeme gösterimlerindeki tutarlılık, ölçülendirme hatalarının önlenmesi ve farklı disiplinlerle (statik, mekanik, elektrik vb.) koordinasyon da çizim sürecindeki önemli zorluklardandır. Tüm bunların üstesinden gelmek için sürekli pratik yapmak, güncel bilgileri takip etmek ve detaylara özen göstermek gerekmektedir. Çizimlerin okunabilirliği ve anlaşılabilirliği de göz önünde bulundurulmalıdır.
Çanakkale'deki mimari projelerde teknik çizimlerin önemi nedir?
Çanakkale'deki mimari projelerde teknik çizimler, projenin hayata geçirilmesindeki en önemli adımlardan biridir. Teknik çizimler, mimarların ve mühendislerin tasarım fikirlerini somutlaştırmasına, inşaat ekiplerine detaylı yol göstermesine ve maliyet hesaplamalarının doğru bir şekilde yapılmasına olanak tanır. Çanakkale'nin kendine özgü tarihi dokusu ve coğrafi koşulları, projelerde özel çözümler gerektirebilir. Bu nedenle, teknik çizimlerin detaylı, doğru ve standartlara uygun olması, projenin başarılı bir şekilde tamamlanması için hayati öneme sahiptir. Ayrıca, teknik çizimler, yasal izin süreçlerinde ve denetimlerde de önemli bir rol oynar; projelerin mevzuata uygunluğunu gösterir ve onay süreçlerini hızlandırır. Kısacası, teknik çizimler, Çanakkale'deki mimari projelerin başarısının temelini oluşturur.
Teknik çizimlerde hangi programlar en çok kullanılmaktadır ve bu programların avantajları nelerdir?
Mimari teknik çizimlerde günümüzde birçok farklı program kullanılmaktadır. En popüler olanlardan bazıları AutoCAD, Revit, ArchiCAD ve SketchUp'tır. AutoCAD, özellikle 2D çizimler ve detaylandırmalar için yaygın olarak kullanılırken, Revit ve ArchiCAD gibi BIM (Yapı Bilgi Modellemesi) programları, projelerin 3D modellerini oluşturarak tasarım, analiz ve dokümantasyon süreçlerini entegre eder. SketchUp ise daha çok kavramsal tasarım ve görselleştirmeler için tercih edilir. Bu programların avantajları arasında, hassas çizim yetenekleri, hızlı düzenleme imkanları, detaylı malzeme kütüphaneleri ve farklı disiplinlerle veri alışverişi yapabilme özellikleri sayılabilir. BIM programları, projelerin daha iyi yönetilmesini ve hataların en aza indirilmesini sağlayarak, zaman ve maliyet tasarrufu sunar.
Mimari teknik çizim öğrenmek isteyenler için hangi kaynaklar önerilir?
Mimari teknik çizim öğrenmek isteyenler için birçok farklı kaynak bulunmaktadır. Üniversitelerin mimarlık ve mühendislik bölümlerindeki dersler, bu alanda temel bir eğitim sağlar. Ayrıca, online eğitim platformlarında (Coursera, Udemy, vb.) ve mesleki eğitim merkezlerinde verilen teknik çizim kursları da oldukça faydalıdır. Kitaplar ve yayınlar da önemli bir kaynaktır; özellikle AutoCAD, Revit ve ArchiCAD gibi programların kullanım kılavuzları ve örnek projeler içeren yayınları, pratik yapma imkanı sunar. Bunun yanı sıra, mimarlık ofislerinde staj yaparak veya deneyimli bir mimarın yanında çalışarak da uygulamalı bilgi edinmek mümkündür. Önemli olan, teorik bilgiyi pratikle birleştirmek, sürekli çizim yapmak ve farklı projeler üzerinde çalışarak tecrübe kazanmaktır. İnternet üzerindeki forumlar ve topluluklar da bilgi alışverişi ve sorun çözümü için değerli kaynaklardır.